+7 (3467) 93 90 90

2-ком, Елены Сагандуковой ул., 16 (123152852)

2-ком, Елены Сагандуковой ул., 16 (123152852)

г. Ханты-Мансийск , Ханты-Мансийский автономный округ-Югра , Елены Сагандуковой ул. , 16

Этаж

12/12

Количество комнат

2

Санузел

Совмещенный

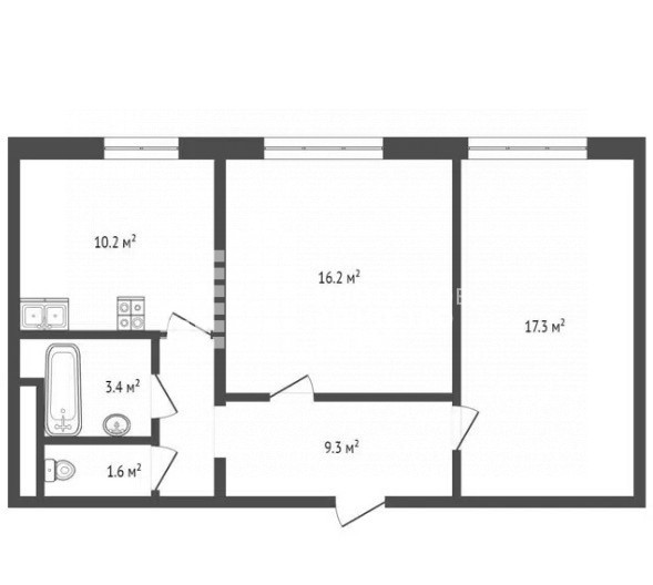
Общая площадь

58 м2

Площадь кухни

10 м2

Материал стен

Железобетонные панели

Отопление

Пассажирский лифт

появилась светлая двухкомнатная квартира в новом районе в центральной части города.

Ключевые преимущества:
  • Идеальная планировка: две изолированные действительно большие комнаты (17 и 16 кв.м), что позволяет с комфортом разместить семью.
  • Отличное расположение: все центральные объекты инфраструктуры в шаговой доступности: школа, детский сад, сетевые магазины, административные здания. Остановки общественного транспорта у дома.
  • Хорошее базовое состояние, остаётся добавить только свои дизайнерские штрихи.
  • Дом 2021года постройки, теплый, ухоженный, с безопасным подъездом. Подъезд оснащен двумя грузопассажирскими лифтами.


Идеальный вариант для молодой семьи, пары или для сдачи в аренду.
Возможен торг для покупателя с полной готовностью к сделке. Звоните!
Арт. 123152852

Расположение

г. Ханты-Мансийск , Ханты-Мансийский автономный округ-Югра , Елены Сагандуковой ул. , 16

Как добраться

7 300 000 ₽

125 862 ₽ за м²

7 300 000 ₽

125 862 ₽ за м²