+7 (3467) 93 90 90

ЖК Югорская ривьера 2

ЖК Югорская ривьера 2

г. Ханты-Мансийск , Ханты-Мансийский автономный округ-Югра , ул. Самаровская

Отделка

Чистовая

Тип окон

Пластиковые

Материал стен

Монолитный

Отопление

Водоснабжение

Канализация

Пассажирский лифт

ЮГОРСКАЯ РИВЬЕРА2 -это жилой комплекс с современными решениями по благоустройству. Застройщик предлагает жилой дом с собственным закрытым двором-сквером для отдыха, с детскими и спортивными площадками.
Строящийся монолитный жилой дом будет состоять из 10ти восьмиэтажных блок-секций. Проектом предусмотрены 342 квартиры с комфортными планировками и отделкой под ключ (124-однокомнатных, 145-двухкомнатных, 73-трехкомнатных), индивидуальные кладовые для хранения спортивного инвентаря, коммерческие помещения на 1 этаже, просторные подъезды, гостевая парковка.

Объект отлично вписывается в архитектурный стиль нового района, выглядит свежо. Современные технологии вентилируемых фасадов с отделкой под натуральные материалы (древесину и камень) создают не только привлекательный экстерьер, но и гарантируют увеличение общей теплоизоляции помещений, повышают звукоизоляцию и пожароустойчивость. Высококачественные материалы отделки «Комфорт +» предполагают повышенные требования к качеству жилого комплекса и включение в проект ряда опций, соответствующих жилью бизнес-класса при сохранении демократичной цены. Материал стен выполнен монолитным железобетонным каркасом и стенами из мелкоштучных каменных материалов

В составе комплекса входят как компактные однокомнатные квартиры, жилье евроформата, так и трехкомнатные квартиры площадью более 100м2. Также во всех квартирах предусмотрены лоджии или балконы.  Что касаемо планировок, застройщик предлагает такие уникальные форматы, как квартиры с увеличенной кухней-гостиной, трехкомнатные квартиры с двумя санузлами и просторными гардеробными.

В шаговой доступности расположены школа и детский сад — не придется тратить много времени на дорогу. Маршруты тщательно продуманы так, чтобы дети могли безопасно добираться до школы.

Согласно генерального плана застройки района, там планируется следующая инфраструктура:

- Многоквартирные жилые дома с придомовой территорией, занятой площадками отдыха и спорта, парковками - 18 объектов выше 8 этажей;
- Спортивно-оздоровительный комплекс;
- Административное здание;
- Кафе;
- Гостиница;
- Здание ГИБДД;
- Пожарное депо;
- Спасательная станция;
- Универсальный спортивный комплекс;
- Молодежно-спортивный досуговый центр;
- Образовательно-молодежный центр;
- Детский сад на 600 мест;
- Средняя общеобразовательная школа на 1725 учащихся и пр.

Поблизости находится Горнолыжный комплекс и Ледовый дворец, Арена-Югра для занятий спортом и активного отдыха, Археопарк для прогулок, все виды магазинов, таких как "Магнит", "Пятерочка", "Лента", поликлиника, аптеки, автомастерские. Рядом расположены остановки для общественного транспорта.

Расположение

г. Ханты-Мансийск , Ханты-Мансийский автономный округ-Югра , ул. Самаровская

Как добраться

ЖК Югорская ривьера 2

Текст
Текст
Текст
Текст

м2

room-image

10 242 114 руб.

126 200 руб. / м2

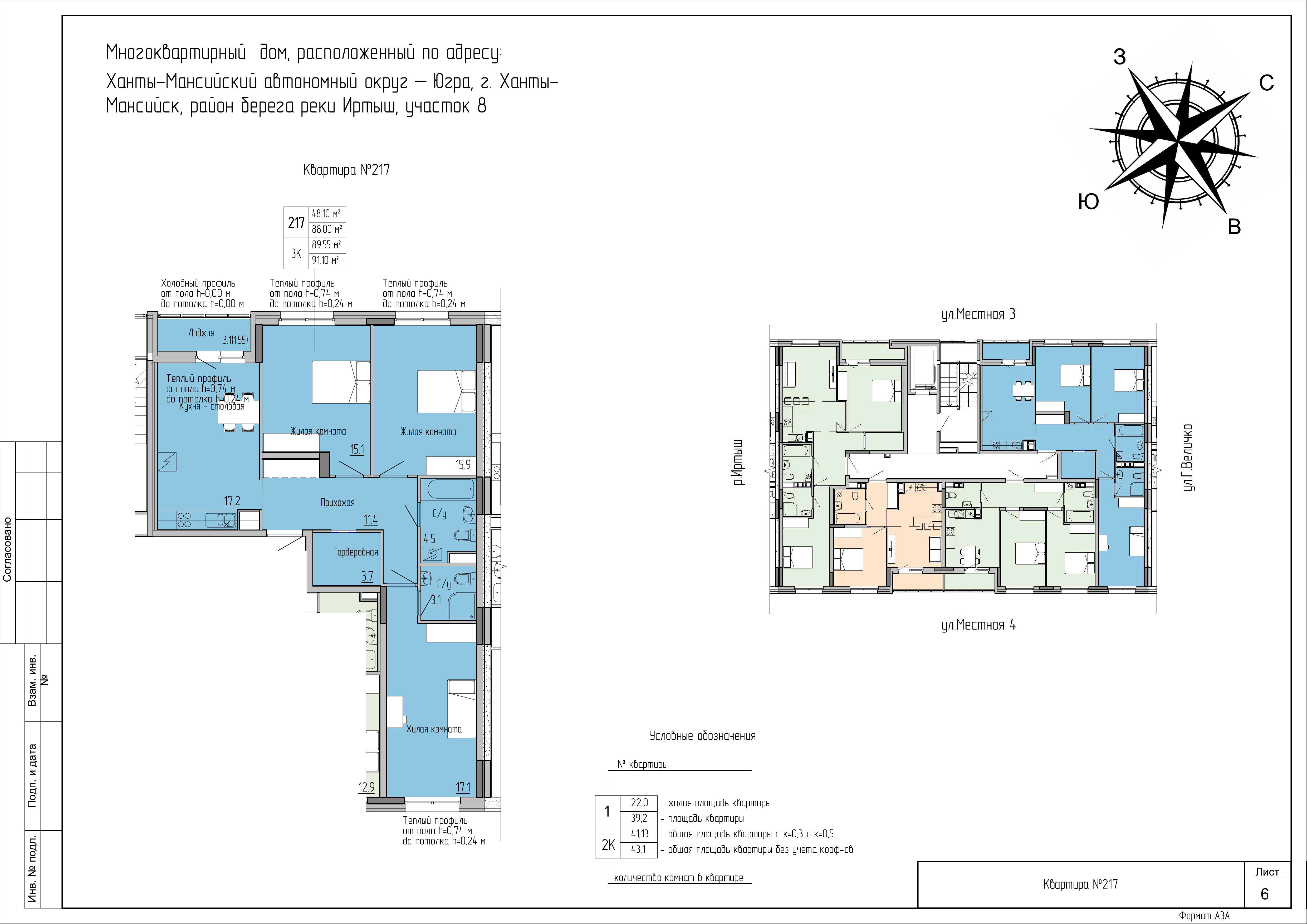
г. Ханты-Мансийск , Ханты-Мансийский автономный округ-Югра , ул. Самаровская

3 комн

83,80 м2

1/8 этаж

room-image

10 339 346 руб.

128 000 руб. / м2

г. Ханты-Мансийск , Ханты-Мансийский автономный округ-Югра , ул. Самаровская

3 комн

84,60 м2

2/8 этаж

room-image

10 302 884 руб.

125 900 руб. / м2

г. Ханты-Мансийск , Ханты-Мансийский автономный округ-Югра , ул. Самаровская

3 комн

84,30 м2

1/8 этаж

room-image

10 418 347 руб.

128 050 руб. / м2

г. Ханты-Мансийск , Ханты-Мансийский автономный округ-Югра , ул. Самаровская

3 комн

85,05 м2

2/8 этаж

room-image

10 479 117 руб.

128 800 руб. / м2

г. Ханты-Мансийск , Ханты-Мансийский автономный округ-Югра , ул. Самаровская

3 комн

85,75 м2

2/8 этаж

room-image

10 786 160 руб.

125 700 руб. / м2

г. Ханты-Мансийск , Ханты-Мансийский автономный округ-Югра , ул. Самаровская

3 комн

86,7 м2

1/8 этаж

room-image

10 866 830 руб.

128 800 руб. / м2

г. Ханты-Мансийск , Ханты-Мансийский автономный округ-Югра , ул. Самаровская

3 комн

88,84 м2

2/8 этаж

room-image

10 927 600 руб.

130 000 руб. / м2

г. Ханты-Мансийск , Ханты-Мансийский автономный округ-Югра , ул. Самаровская

3 комн

89,34 м2

2/8 этаж

room-image

10 898 430 руб.

127 700 руб. / м2

г. Ханты-Мансийск , Ханты-Мансийский автономный округ-Югра , ул. Самаровская

3 комн

89,10 м2

2/8 этаж

room-image

10 989 585 руб.

128 300 руб. / м2

г. Ханты-Мансийск , Ханты-Мансийский автономный округ-Югра , ул. Самаровская

3 комн

89,85 м2

2/8 этаж

room-image

11 269 127 руб.

128 300 руб. / м2

г. Ханты-Мансийск , Ханты-Мансийский автономный округ-Югра , ул. Самаровская

3 комн

92,15 м2

2/8 этаж

room-image

11 269 127 руб.

128 000 руб. / м2

г. Ханты-Мансийск , Ханты-Мансийский автономный округ-Югра , ул. Самаровская

3 комн

92,05 м2

2/8 этаж

room-image

12 508 835 руб.

130 000 руб. / м2

г. Ханты-Мансийск , Ханты-Мансийский автономный округ-Югра , ул. Самаровская

3 комн

102,45 м2

2/8 этаж

0 ₽

0 ₽ за м²